|
|
es 1228
Casa (145m2) con 2 o 3 habitaciones, construida en 2009 l’Escala – Riells de Dalt 349.000 €

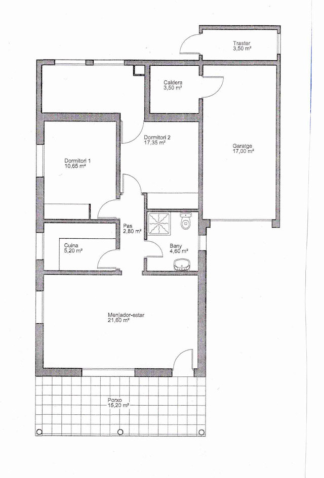
Esta propiedad destaca por su vivienda de 145 m², bien mantenido. Está construida sobre un terreno cerrado de 294 m², lo que la convierte en un entorno de vida privilegiado. La construcción data del año 2009 y se caracteriza por su arquitectura en tres niveles, proporcionando un espacio habitable optimizado.
El sótano, accesible a través de una rampa exterior, se utiliza como garaje de 35 m².
En la planta baja hay un recibidor, un salón-comedor luminoso con chimenea y acceso directo a la terraza y al jardín. La cocina está completamente equipada y también tiene salida a la terraza. Además, hay un baño con bañera y un trastero. Cabe destacar que la configuración de la casa permite modificar el espacio para crear una tercera habitación.
La planta superior dispone de dos dormitorios con grandes armarios empotrados y un baño con ducha. Desde el pasillo se accede a una amplia terraza.
La propiedad está equipada con calefacción eléctrica y sistema de alarma. Se encuentra en una zona residencial tranquilo y agradable, que combina un entorno relajante con la proximidad al pueblo. El centro de Riells, con su playa de arena y numerosos comercios, está a unos 900 metros. Además, a solo 3 minutos hay una zona de ocio ideal para pasear, hacer deporte o relajarse.
Esta encantadora casa se distingue por la calidad de su construcción, su buen estado y sus soleados espacios exteriores, ideales para momentos de descanso. Es adecuada tanto para vivienda permanente como para uso vacacional.
















|
|
Ofertas:
L`Escala – Brancs es1247
238.000 €
L`Escala - Civada es1021
269.000 €
l‘Escala – C/Coloma
es1229 289.000 €
l’Escala – Lluria es1241 339.000 €
l’Escala – Riells de Dalt es1228 349.000 €
L’Escala- SANT MARTI es1207 350.000 €
L`Escala- SANT MARTI es1206 389.000 €
L'Escala–C/Olives es1216
429.000€
L’Escala – Puig Sec es1156
450.000 €
L`Escala –Sant Marti es1022 650.000 €
|
|